Baumholder - gesucht,gefunden,gekauft - gut geschnittene 3 Zi./Kü./Bad/Loggia- ETW in ruhiger Stadtrandlage

Baumholder - gesucht,gefunden,gekauft - gut geschnittene 3 Zi./Kü./Bad/Loggia- ETW in ruhiger Stadtrandlage

117.500,00 EUR
Kaufpreis
55774 Baumholder
Angebotsadresse
Übersicht
Objekt-Nr. HS000396
Objektart Wohnung
Objekttyp Etagenwohnung
Vermarktung Kauf
Nutzung Wohnen
Land Deutschland
Bundesland Rheinland-Pfalz
PLZ 55774
Ort Baumholder
Preise und Kosten
Kaufpreis 117.500,00 EUR
Hausgeld pro Monat 250,00 EUR
Maklerprovision 3,57% des Kaufpreises inkl. 19% MwSt.
Außenstellplätze 1
Flächen
Wohnfläche ca. 88,00 m²
Stellplätze 1
Ausstattung
Zimmer 3,0
Schlafzimmer 2
Badezimmer 1
Balkon/Terrasse 1
Balkone 1
Bad Fenster, Wanne
Küche Einbauküche
Boden Fliesen, Laminat
Heizungsart Zentralheizung
Befeuerung Öl
Stellplatzart(en) Außenstellplatz
Ausrichtung Balkon/Terrassen Südwest
Kabel / Sat-TV ja
Breitbandzugang VDSL
Bandbreite 100.000,0 Mbit/Sec
Abstellraum ja
Rollladen ja
Zustandsangaben
Baujahr 2008
Zustand gepflegt
Energieverbrauch
Ausstellungsdatum 02.06.2016
Ausweiserstellung ab dem 1.5.2014
gültig bis 06-2026
Energieausweis Art Verbrauch
Energieeffiziensklasse C
Endenergieverbrauch kWh/(m²a) 78,7
mit Warmwasser ja
Baujahr 2008
Befeuerung Öl
Sonstiges
verfügbar ab nach Vereinbarung

Objektbeschreibung

ENERGIEAUSWEIS

- Energieeffizienzklasse: C
- erstellt am: 02.06.2016
- gültig bis: 02.06.2026
- Art des Energieausweises: nach Verbrauch
- Verbrauchskennwert insgesamt: ca. 78,7 kWh/(m²a)
- Verbrauch inkl. Warmwasser: ja
- Heizungsart: Zentralheizung
- Befeuerung: Öl
- Baujahr: 2008

---------------

Die zum Verkauf stehende Eigentumswohnung befindet sich im oberen Stockwerk eines Mehrparteienhauses am Stadtrand von Baumholder, in ruhiger Lage und dennoch zentrumsnah.
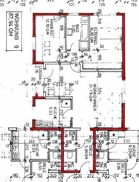
Die gut geschnittene Wohnung bietet auf rd. 88qm Wohnfläche 3 Zimmer, Küche, Bad und Gäste WC, sowie einen Abstellraum und eine Loggia.
Man erreicht die Wohnung über ein großzügig gestaltetes und helles Treppenhaus im 3. Obergeschoss (allerdings ohne Aufzug ) und betritt zunächst eine Diele, in der sich linker Hand das Gäste WC, sowie der kleine Abstellraum befinden.
Am Ende der Diele öffnet sich dann die Wohnung zu einem großzügig gestalteten Wohn- Essbereich mit großen Fenstern und Schiebeelementen, die viel Tageslicht hereinlassen und für eine helle und freundliche Atmosphäre sorgen.
In diesen Bereich ist auch die kleine, separate Küche integriert, so dass man einen in sich geschlossenen Wohn, Eß und Kochbereich hat, ergänzt durch eine kleine Loggia, von der man einen schönen Ausblick auf die Umgebung hat.
Auf der gegenüberliegenden Seite des Wohn-Esszimmers befindet sich dann der Schlafbereich mit Eltern- und Kinderschlafzimmer, sowie dem Badezimmer.
Im Keller des Gebäudes gib es die üblichen Kellerboxen und auf dem Dachboden ein weiterer Abstellraum und im Außenbereich steht ein eigener Stellplatz zur Verfügung.
Die Wohnung ist z.Z. vermietet, der Mietvertrag kann aber nach einem Kauf problemlos aufgehoben werden.
Die derzeitige Mietvertrag generiert eine Jahreskaltmiete i.H.v. rd. 6.200,00 €

Ausstattung

Das Mehrfamilienhaus wurde 2008 in Massivbauweise errichtet , so dass die Ausstattung der Wohnung in technischer und baulicher Hinsicht heutigen Standards entspricht.
Es gab zwischenzeitliche Renovierungen und Sanierungen. So wurden bereits neue Fenster mit Dreifachverglasung eingebaut, die durch Kunststoffrolladen geschützt werden und auch der Dachboden und die Fassaden wurden bereits gedämmt.
Durch diese Maßnahmen wird ein Endenergieverbrauch von lediglich 78,7 kWh. ( C ) erreicht.
Die Wohnung wird über eine Ölzentralheizung beheizt, die Warmwassererzeugung erfolgt über Strom bzw. Durchlauferhitzer.
Die Böden der Wohnung sind mit Laminat bzw. Fliesen ausgelegt, die Wände sind einfach tapeziert und gestrichen.
Das Badezimmer ist komplett gefliest, verfügt über Badewanne, Toilette, Handwaschbecken und Außenfenster.
Zusätzlich gibt es ein Gäste WC, das ebenfalls komplett gefliest ist und eine kleine Loggia vor dem Wohnzimmer, die Ihnen ein schönes und geschütztes Plätzchen zum Entspannen garantiert.
Sat-TV und schnelles Internet - bis 250 Mbit - verbinden Sie mit dem Rest der Welt und einen Platz für Ihr Auto gehört auch dazu.

Die Aufteilung der Räumlichkeiten in der Wohnung im Einzelnen:
1 Diele/Flur
1 großes Wohnzimmer
2 Schlafzimmer
1 Küche
1 Badezimmer
1 Gäste WC
1 Loggia
1 Abstellraum
außerhalb der Wohnung:
1 Kellerraum
1 Dachbodenraum
1 PKW Stellpatz

Gemeinschaftsräume:
Wasch- und Trockenraum
Fahrradraum

Lagebeschreibung

Baumholder, zentrumsnah - das ist der Standort des Mehrfamilienhauses, in dem sich die zum Verkauf stehende Wohnung befindet.
Die kleine Stadt Baumholder liegt zwischen Hunsrück und Nordpfälzer Bergland im Landkreis Birkenfeld in Rheinland-Pfalz.
Die Umgebung ist geprägt durch Felder, Wiesen und ausgedehnte Waldgebiete, allerdings ohne die ursprünglich zahlreich angesiedelten landwirtschaftlichen Betriebe, die es früher einmal gab.
Ca. 4600 Einwohner haben hier ihr Zuhause, die überwiegend durch die Verbindung zur großen amerikanischen Garnison Ihr Auskommen finden.
Baumholder gilt als Mittelzentrum, was bedeutet, dass die Stadt über entsprechende Einrichtungen verfügt, bzw. deren Dienstleistungen anbietet.
Dazu zählen ein Krankenhaus, Fachärzte, Apotheken und andere medizinische Dienstleister.
Eine gute Versorgung mit den "Gütern des täglichen Bedarfs" ist durch mehrere Supermärkte, Bäckereien und Metzgereien selbstverständlich gewährleistet.
Diverse Geschäfte, Handwerksbetriebe oder Bankfilialen haben sich in der Stadt angesiedelt, dazu etliche Gewerbebetriebe aus allen Branchen.
Eine gut aufgestellte Gastronomie, Tourismus und Freizeitmöglichkeiten, sowie ein Badesee am Rande der Stadt, runden das vielfältige Angebot ab.
Kulturelle Angebote, soziale Kontakte und gesellschaftliches Miteinander werden durch eine Vielzahl an Vereinen ermöglicht.
Ein Schulzentrum mit Realschule Plus, eine Kita und die Grundschule sorgen für die Bildung der Kinder, eine Volkshochschule für die Weiterbildung der Großen.
Die Verkehrsanbindung ist ebenso ausgezeichnet.
Ein Bahnhof für den Regionalverkehr mit Verbindung ins Rhein-Main Gebiet oder nach Saarbrücken, eine Autobahnauffahrt auf die A62 Kaiserslautern-Trier-Luxemburg in ca. 10 Kilometer Entfernung, eine gute Anbindung in die Region durch den ÖPNV und der in ca. 60 km Entfernung liegende Flughafen FFM-Hahn, ermöglichen ein schnelles Erreichen Ihrer Ziele.
Herzlich Willkommen in Baumholder

Sonstiges

Von Schlapp Immobilien – Denn wir vermitteln Ihnen Zufriedenheit

Nutzen Sie die Kontaktmöglichkeit über dieses Exposé und vereinbaren unverbindlich einen Besichtigungstermin. Ich werde mich umgehend mit Ihnen zwecks Terminabstimmung in Verbindung setzen.

Ihr Ansprechpartner für dieses Objekt:

Gudrun Steffes
Tel.: +49 (0)6501 – 60 69 607
Mobil:+49 (0)177 – 21 92 166
www.schlapp-immobilien.de
www.facebook.com/von.schlapp.immobilien
www.twitter.com/von_schlapp

Hinweis zum Exposé Inhalt:

Unser Exposé basiert auf Angaben unserer Auftraggeber. Für die Richtigkeit, Vollständigkeit sowie der Aktualität der im Exposé befindlichen Angaben können wir daher nicht garantieren. Die im Exposé angegebenen Flächenangaben beruhen ebenfalls auf Angaben unserer Auftraggeber und sind unverbindlich.

Beim Kauf älterer Bestandsimmobilien erweist sich die Hinzuziehung eines Fachmannes / eines Sachverständigen vor Vertragsabschluss als ratsam, da offene und versteckte Mängel, die auch dem Verkäufer oftmals nicht bekannt sind, zu erheblichen finanziellen Mehraufwand nach Kauf führen können.

Wir empfehlen Ihnen daher als Käufer vor Erwerb einer älteren Immobilie einen unabhängigen Gutachter in Anspruch zu nehmen!

Kostenfrei Verkehrswert Ihrer Immobilie ermitteln unter http://www.verkehrswert-ermitteln.de
------------------------------------------------------------------------------------------
ACHTUNG TIPPGEBER!

Sie kennen jemanden in der Familie, im Freundeskreis, im Bekanntenkreis, im Büro oder im Verein, der gerade seine Immobilie verkaufen möchte oder zumindest mit dem Gedanken spielt?

Dieser Tipp kann sich für Sie auszahlen!

Sprechen Sie uns an!

Wir zahlen Ihnen eine überdurchschnittliche Prämie.

Baumholder - gesucht,gefunden,gekauft - gut geschnittene 3 Zi./Kü./Bad/Loggia- ETW in ruhiger Stadtrandlage

-
Bus
9,0 km
Autobahn
1,4 km
Kindergarten
1,2 km
Grundschule
117.500,00 EUR
Kaufpreis
55774 Baumholder
Angebotsadresse

Lagebeschreibung

Baumholder, zentrumsnah - das ist der Standort des Mehrfamilienhauses, in dem sich die zum Verkauf stehende Wohnung befindet.
Die kleine Stadt Baumholder liegt zwischen Hunsrück und Nordpfälzer Bergland im Landkreis Birkenfeld in Rheinland-Pfalz.
Die Umgebung ist geprägt durch Felder, Wiesen und ausgedehnte Waldgebiete, allerdings ohne die ursprünglich zahlreich angesiedelten landwirtschaftlichen Betriebe, die es früher einmal gab.
Ca. 4600 Einwohner haben hier ihr Zuhause, die überwiegend durch die Verbindung zur großen amerikanischen Garnison Ihr Auskommen finden.
Baumholder gilt als Mittelzentrum, was bedeutet, dass die Stadt über entsprechende Einrichtungen verfügt, bzw. deren Dienstleistungen anbietet.
Dazu zählen ein Krankenhaus, Fachärzte, Apotheken und andere medizinische Dienstleister.
Eine gute Versorgung mit den "Gütern des täglichen Bedarfs" ist durch mehrere Supermärkte, Bäckereien und Metzgereien selbstverständlich gewährleistet.
Diverse Geschäfte, Handwerksbetriebe oder Bankfilialen haben sich in der Stadt angesiedelt, dazu etliche Gewerbebetriebe aus allen Branchen.
Eine gut aufgestellte Gastronomie, Tourismus und Freizeitmöglichkeiten, sowie ein Badesee am Rande der Stadt, runden das vielfältige Angebot ab.
Kulturelle Angebote, soziale Kontakte und gesellschaftliches Miteinander werden durch eine Vielzahl an Vereinen ermöglicht.
Ein Schulzentrum mit Realschule Plus, eine Kita und die Grundschule sorgen für die Bildung der Kinder, eine Volkshochschule für die Weiterbildung der Großen.
Die Verkehrsanbindung ist ebenso ausgezeichnet.
Ein Bahnhof für den Regionalverkehr mit Verbindung ins Rhein-Main Gebiet oder nach Saarbrücken, eine Autobahnauffahrt auf die A62 Kaiserslautern-Trier-Luxemburg in ca. 10 Kilometer Entfernung, eine gute Anbindung in die Region durch den ÖPNV und der in ca. 60 km Entfernung liegende Flughafen FFM-Hahn, ermöglichen ein schnelles Erreichen Ihrer Ziele.
Herzlich Willkommen in Baumholder

Anbieter kontaktieren
Hinweis: Diese Einwilligung können Sie jederzeit mit Wirkung für die Zukunft widerrufen, indem Sie eine E-Mail an Diese E-Mail-Adresse ist vor Spambots geschützt! Zur Anzeige muss JavaScript eingeschaltet sein! schicken.
Sicherheitscode
Angebot weiterleiten

An:

Von:

Sicherheitscode
Energieausweis
Energieausweis
Ausstellungsdatum 02.06.2016
Ausweiserstellung ab dem 1.5.2014
gültig bis 06-2026
Energieausweis Art Verbrauch
Energieeffiziensklasse C
Endenergieverbrauch kWh/(m²a) 78,7
mit Warmwasser ja
Baujahr 2008
Befeuerung Öl
Finanzierungsrechner
+
+
+
=
-
=
%
%

Ihr berechnetes Ergebnis:

=
=
=