Thalfang-Himmelberg im Nationalpark Hunsrück-Hochwald, 3 Zi./Kü./Bad Ferienwhg. in 2 Parteien Chalet

Thalfang-Himmelberg im Nationalpark Hunsrück-Hochwald, 3 Zi./Kü./Bad Ferienwhg. in 2 Parteien Chalet

85.000,00 EUR
Kaufpreis
54424 Thalfang
Angebotsadresse
Übersicht
Objekt-Nr. HS000381
Objektart Wohnung
Objekttyp Ferienwohnung
Vermarktung Kauf
Nutzung Wohnen
Land Deutschland
Bundesland Rheinland-Pfalz
PLZ 54424
Ort Thalfang
Preise und Kosten
Kaufpreis 85.000,00 EUR
Maklerprovision 4,76% des Kaufpreises inkl. 19% MwSt.
Außenstellplätze 1
Flächen
Wohnfläche ca. 85,00 m²
Stellplätze 1
Ausstattung
Zimmer 3,0
Schlafzimmer 2
Badezimmer 1
Balkon/Terrasse 1
Balkone 1
Bad Dusche, Fenster
Küche Einbauküche
Boden Fliesen, Laminat
Heizungsart Zentralheizung
Befeuerung Gas
Stellplatzart(en) Außenstellplatz
Gartennutzung ja
Ausrichtung Balkon/Terrassen Südwest
Kabel / Sat-TV ja
Breitbandzugang DSL
Rollladen ja
Zustandsangaben
Baujahr 1985
Zustand gepflegt
Energieverbrauch
Befeuerung Gas
Sonstiges
verfügbar ab sofort
als Ferienimmobilie geeignet ja
Ausblick Ferne

Objektbeschreibung

ENERGIEAUSWEIS

Der Energieausweis liegt seitens des Anbieters noch nicht vor.

---------------

Das Ferienhaus gehört zum Ferienpark "Himmelberg" in Thalfang am Erbeskopf und befindet sich im ersten Bauabschnitt des Parks.
Der Ferienpark wurde bereits Ende der 1970iger Jahre gegründet und in drei Bauabschnitten bis Mitte der 1990iger Jahre erweitert.
Er erstreckt sich über eine Fläche von einigen Hektar am Ortsrand von Thalfang am Erbeskopf und ist eingebettet in eine wunderschöne Natur, die wiederum durch viel Wald, Felder und Wiesen geprägt ist.
Das Ferienhaus im Chaletstil wurde 1985 erbaut und bietet 2 Wohneinheiten - eine Ferienwohnung im Souterrain - und die zum Verkauf stehende Einheit im darüber liegenden Erdgeschoss.
Das Gebäude wurde in einen Hang hinein gebaut und ist umgeben von Grünflächen und Sträuchern, z.T. auch von altem Baumbestand und der erste Eindruck den man beim Anblick bekommt, vermittelt Ruhe und Entspannung in himmlisch ruhiger Natur.
Man erreicht das Haus ,das von weiteren Ferienhäusern ähnlichen Typs umgeben ist, von einer ruhigen Anliegerstraße kommend, über eine Treppe, die zunächst zur Souterrainwohnung und dann weiter zum Zugang der zum Verkauf stehenden Wohnung auf der Rückseite des Gebäudes führt.
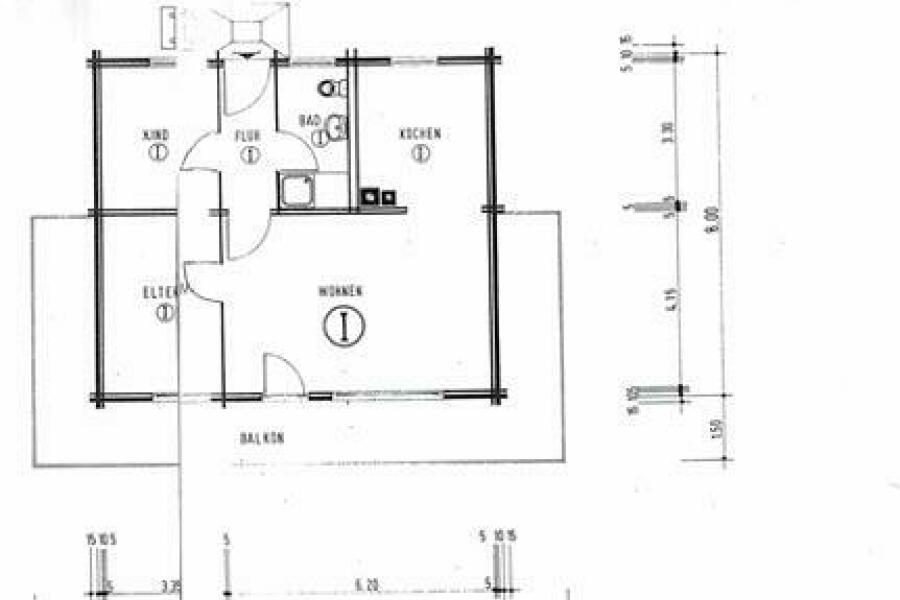
Nach dem Betreten des Hauses steht man zunächst in einem kleinen Flur, von dem man linker Hand ein kleines Badezimmer und rechter Hand ein Schlafzimmer betreten kann.
Der größte Teil der Wohnung wird vom angrenzenden Wohnzimmer eingenommen, das mit seiner großen Fensterfront zum Tal hin ausgerichtet ist. Von hier und vom davorliegendem und rundum verlaufenden Balkon kann man einen herrlich Blick über den angrenzenden Hochwald und den Ort Thalfang bis hin zum Erbeskopf genießen.
Nebenan und zur Rückseite hin ausgerichtet, befindet sich die Küche, die mit Einbauküchenzeile und einer Essecke ausgestattet ist.
Das gesamte Mobiliar der Wohnung ist "Ferienhaustypisch" und Bestandteil des Verkaufs.
Herzlich willkommen im Ferienpark Himmelberg /Thalfang

Ausstattung

Die technische Ausstattung Ihres neuen Feriendomizils ist zeitgemäß. Die Elektrik und die Wasserversorgung stammen aus den 1980iger Jahren, sind aber in gutem Zustand.
Jede der beiden Wohneinheiten verfügt selbstverständlich über einen eigenen Zähler, der Strom wird direkt mit dem Versorger abgerechnet. Ein Zwischenzähler zur Ermittlung der Verbräuche von Urlaubsgästen befindet sich in der Wohnung.
TV wird über eine eigene SAT Anlage empfangen, Internet hat 4G Standard.
Die Beheizung der Wohnung erfolgt mittels Gasheizung, die über einen Anbieter des Ferienparks versorgt wird.
Die Ausstattung der Räume ist praktisch und pflegeleicht ausgerichtet. Die Böden sind mit Laminat ausgelegt, das Bad ist gefliest. Dusche und WC, sowie ein Handwaschbecken gehören zur Ausstattung des Bades.
Die Türen und Fenster sind aus Holz und doppelt verglast. Die Innenwände sind einfach tapeziert oder mit Holz verkleidet bzw. verputzt.
Die Wohnung wird mit dem vorhandenen und für Urlaubszwecke vorgesehenen Mobiliar verkauft.
Die Aufteilung der Räumlichkeiten:
1 Wohnzimmer
2 Schlafzimmer
1 Küche
1 Bad mit Dusche und WC
Balkon
Stellplatz

Pflichtangaben zum Energieausweis: Ein Energieausweis ist nicht erforderlich

Lagebeschreibung

Der Ferienpark Himmelberg gehört zur ca. 1500 Einwohner zählenden Gemeinde Thalfang im Regierungsbezirk Trier-Saarburg in Rheinland Pfalz.
Die Gemeinde ist ein staatl. anerkannter Erholungsort der Urlaubsregion Erbeskopf und ist auch Teil des Nationalpark Hunsrück-Hochwald.
Die Wohnungen und Chalets des Parks liegen in absolut ruhiger Umgebung, eingebettet in eine wunderschöne Natur mit sanften Hügeln, weiten Feldern und großen Waldgebieten. Kein Durchgangsverkehr, keine Industrie stört die himmlische Ruhe, die den Park umgibt, so dass auch der Natur- und Wanderfreund hier sein ideales Revier findet. Kilometerlange Wanderungen, durch zum Teil nur sehr dünn besiedelte Gegenden, sind genauso möglich, wie Skilaufen im Winter am Erbeskopf, der mit 816 mtr. der höchste Berg im Hunsrück ist und nur wenige Kilometer entfernt liegt.
Die Gemeinde Thalfang selbst bietet diverse Möglichkeiten der Freizeitgestaltung, wie z.B. ein öffentliches Hallenschwimmbad mit Wellnessbereich, oder ein Freibad im 16 km entfernten Morbach.
Im Ort findet der Urlauber viele Einkaufsmöglichkeiten. Mehrere Supermärkte, diverse Fachgeschäfte, Metzger und Bäcker bieten Ihre Produkte an und wenn mal ein Handwerker ran muss, auch der ist vor Ort.
Selbstverständlich fehlt auch eine gut aufgestellte Gastronomie nicht.
Die kulturelle Seite kommt ebenfalls nicht zu kurz. So bietet das nahe Trier mit seiner römischen Vergangenheit und das Moseltal mit seiner schönen Landschaft und mit vielen bekannten Weinorten wie z.B. Bernkastel-Kues oder Cochem jede Menge kulturelle Veranstaltungen und Ausflugsmöglichkeiten.
Auch das in ca. 1 Std. zu erreichende Luxemburg oder das nahe Saartal sollten nicht unbesucht bleiben um einen erlebnisreichen Urlaub zu verbringen.
Verkehrsmäßig ist Thalfang ebenfalls gut zu erreichen. Die Autobahn A 1/ 62 Trier-Kaiserslautern, bzw. Trier-Saarbrücken oder Trier-Köln ist nur 15 Kilometer entfernt und wird über die Hunsrückhöhenstraße Trier-Mainz in kürzester Zeit erreicht.

Sonstiges

Von Schlapp Immobilien – Denn wir vermitteln Ihnen Zufriedenheit

Nutzen Sie die Kontaktmöglichkeit über dieses Exposé und vereinbaren unverbindlich einen Besichtigungstermin. Ich werde mich umgehend mit Ihnen zwecks Terminabstimmung in Verbindung setzen.

Ihr Ansprechpartner für dieses Objekt:

Gudrun Steffes
Tel.: +49 (0)6501 – 60 69 607
Mobil:+49 (0)177 – 21 92 166
www.schlapp-immobilien.de
www.verkehrswert-ermitteln.de
www.facebook.com/von.schlapp.immobilien
www.twitter.com/von_schlapp

Hinweis zum Exposé Inhalt:

Unser Exposé basiert auf Angaben unserer Auftraggeber. Für die Richtigkeit, Vollständigkeit sowie der Aktualität der im Exposé befindlichen Angaben können wir daher nicht garantieren. Die im Exposé angegebenen Flächenangaben beruhen ebenfalls auf Angaben unserer Auftraggeber und sind unverbindlich.

Beim Kauf älterer Bestandsimmobilien erweist sich die Hinzuziehung eines Fachmannes / eines Sachverständigen vor Vertragsabschluss als ratsam, da offene und versteckte Mängel, die auch dem Verkäufer oftmals nicht bekannt sind, zu erheblichen finanziellen Mehraufwand nach Kauf führen können.

Wir empfehlen Ihnen daher als Käufer vor Erwerb einer älteren Immobilie einen unabhängigen Gutachter in Anspruch zu nehmen!

Kostenfrei Verkehrswert Ihrer Immobilie ermitteln unter http://www.verkehrswert-ermitteln.de
------------------------------------------------------------------------------------------
ACHTUNG TIPPGEBER!

Sie kennen jemanden in der Familie, im Freundeskreis, im Bekanntenkreis, im Büro oder im Verein, der gerade seine Immobilie verkaufen möchte oder zumindest mit dem Gedanken spielt?

Dieser Tipp kann sich für Sie auszahlen!

Sprechen Sie uns an!

Wir zahlen Ihnen eine überdurchschnittliche Prämie.

Thalfang-Himmelberg im Nationalpark Hunsrück-Hochwald, 3 Zi./Kü./Bad Ferienwhg. in 2 Parteien Chalet

0,3 km
Bus
12,0 km
Autobahn
-
Kindergarten
-
Grundschule
85.000,00 EUR
Kaufpreis
54424 Thalfang
Angebotsadresse

Lagebeschreibung

Der Ferienpark Himmelberg gehört zur ca. 1500 Einwohner zählenden Gemeinde Thalfang im Regierungsbezirk Trier-Saarburg in Rheinland Pfalz.
Die Gemeinde ist ein staatl. anerkannter Erholungsort der Urlaubsregion Erbeskopf und ist auch Teil des Nationalpark Hunsrück-Hochwald.
Die Wohnungen und Chalets des Parks liegen in absolut ruhiger Umgebung, eingebettet in eine wunderschöne Natur mit sanften Hügeln, weiten Feldern und großen Waldgebieten. Kein Durchgangsverkehr, keine Industrie stört die himmlische Ruhe, die den Park umgibt, so dass auch der Natur- und Wanderfreund hier sein ideales Revier findet. Kilometerlange Wanderungen, durch zum Teil nur sehr dünn besiedelte Gegenden, sind genauso möglich, wie Skilaufen im Winter am Erbeskopf, der mit 816 mtr. der höchste Berg im Hunsrück ist und nur wenige Kilometer entfernt liegt.
Die Gemeinde Thalfang selbst bietet diverse Möglichkeiten der Freizeitgestaltung, wie z.B. ein öffentliches Hallenschwimmbad mit Wellnessbereich, oder ein Freibad im 16 km entfernten Morbach.
Im Ort findet der Urlauber viele Einkaufsmöglichkeiten. Mehrere Supermärkte, diverse Fachgeschäfte, Metzger und Bäcker bieten Ihre Produkte an und wenn mal ein Handwerker ran muss, auch der ist vor Ort.
Selbstverständlich fehlt auch eine gut aufgestellte Gastronomie nicht.
Die kulturelle Seite kommt ebenfalls nicht zu kurz. So bietet das nahe Trier mit seiner römischen Vergangenheit und das Moseltal mit seiner schönen Landschaft und mit vielen bekannten Weinorten wie z.B. Bernkastel-Kues oder Cochem jede Menge kulturelle Veranstaltungen und Ausflugsmöglichkeiten.
Auch das in ca. 1 Std. zu erreichende Luxemburg oder das nahe Saartal sollten nicht unbesucht bleiben um einen erlebnisreichen Urlaub zu verbringen.
Verkehrsmäßig ist Thalfang ebenfalls gut zu erreichen. Die Autobahn A 1/ 62 Trier-Kaiserslautern, bzw. Trier-Saarbrücken oder Trier-Köln ist nur 15 Kilometer entfernt und wird über die Hunsrückhöhenstraße Trier-Mainz in kürzester Zeit erreicht.

Anbieter kontaktieren
Hinweis: Diese Einwilligung können Sie jederzeit mit Wirkung für die Zukunft widerrufen, indem Sie eine E-Mail an Diese E-Mail-Adresse ist vor Spambots geschützt! Zur Anzeige muss JavaScript eingeschaltet sein! schicken.
Sicherheitscode
Angebot weiterleiten

An:

Von:

Sicherheitscode
Finanzierungsrechner
+
+
+
=
-
=
%
%

Ihr berechnetes Ergebnis:

=
=
=